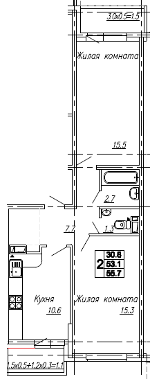
Продается 2-х комн. квартира, 55.71 кв.м., 8/25 эт
| Стоимость | 5 400 026 |
|---|---|
| Ремонт | Требуется ремонт |
| Балкон | Балкон + лоджия |
| Доля в квартире | Нет |
| Онлайн показ | могу провести |
| Статус Недвижимости Авито | Квартира |
| Комнат в квартире | 2 |
| Площадь, кв.м. | 55.71 |
| Жилая площадь | 30.08 |
| Площадь кухни, кв.м. | 10.6 |
| Этаж | 8 |
| Этажность | 25 |
| Материал стен | Монолитный |
| Населенный пункт | Ростов-на-Дону |
|---|---|
| Район города | Октябрьский |
| Улица | улица Нансена |
| Номер дома | 83 |
В продаже ЭКСКЛЮЗИВНОЕ предложения
Продаю 2-комнатную квартиру площ. 55.7 кв. м на 8 этаже 25 этажного дома. ДОМ СДАН. Вид из окон на две стороны света. В отделку входит чистовая стяжка пола, индивидуальное крышное отопление, водоснабжение и электричество заведено, установлены электрические автоматы, силовой кабель под электрическую плиту, гидроизоляция пола с/у. Выводы под холодную, горячую воду, приборы учета ГВС, ХВС и электричества, современные радиаторы отопления. Качественные металлопластиковые окна, железная входная дверь, хорошая шумоизоляция. Из окон открывается красивый вид на город. Вентилируемые фасады из керамогранита, закрытая охраняемая территория с круглосуточным видеонаблюдением. На территории детский сад, фитнес-клуб, супермаркет, зоны отдыха, ландшафтный дизайн. Большим плюсов является тот факт что в данной квартире выполнен ремонт (пред чистовая отделка от застройщика + выполнена разводка электрики по всей квартире).
Более подробно можем ответить на все Ваши вопросы по телефону)









